
LW38-40.5戶外交流高壓六氟化硫斷路器(以下簡稱“斷路器"),為三相交流50Hz、額定電壓40.5kV的戶外高壓配電開關設備。可用來分、合額定電流和 故障電流,投、切電容組、轉換線路,尤其適合頻繁操作,也可作為聯絡斷路器使用。 斷路器以SF6氣體為滅弧和絕緣介質,戶外安裝,采用高架型瓷柱式結構。 斷路器符合GB 1984-2014《高壓交流斷路器》、DL/T 402-2016《高壓交流斷路器》和JB/T 9694-2008《高壓交流六氟化硫斷路器》等技術標準。
9、耐受地震能力:水平加速度0.3g,垂直加速度0.2g。
技術參數
LW38-40.5技術參數 |
|
|
| |
額定頻率 |
| Hz | 50 | |
額定電壓 |
| kV | 40.5 | |
額定電流 |
| A | 1250、1600、2000 | |
額定短路開斷電流 | kA | 31.5 | ||
額定短路關合電流 | kA | 80 | ||
額定短時耐受電流 | kA | 31.5 | ||
額定峰值耐受電流 |
| kA | 80 | |
額定失步開斷電流 | kA | 10 | ||
額定短路持續時間 |
| S | 4 | |
額定短路開斷電流開斷次數 | 次 Times | 1 0 | ||
|
| 相間、對地(干試) | kV/min | 95/1 |
額定短時工頻耐受電壓 |
|
|
|
|
|
| 斷口(干試) | kV/min | 118/1 |
|
| 相間、對地(濕試) | kV/min | 80/1 |
|
| 輔助回路對地 | kV/min | 2/1 |
額定雷電沖擊耐受電壓 |
| 相間、對地 | kV | 185 |
|
| 斷口 | kV | 215 |
額定操作電壓及輔助回路額定電壓 | V | AC220、DC220 | ||
主回路電阻 |
| 額定電流1600A及以下 | μΩ | ≤90 |
|
| 額定電流大于1600A | ms | ≤40 |
合閘時間 |
| 交流電壓下 | ms | ≤100 |
|
| 直流電壓下 | ms | 55~100 |
分閘時間 |
| 交流電壓下 | ms | ≤60 |
|
| 直流電壓下 | ms | 30~65 |
|
|
| 續上表 |
LW38-40.5技術參數 |
|
|
|
合-分時間 |
| ms | ≥120(運行狀態) ≥120 (Operating state) |
分-合時間 |
| ms | ≤50 |
全開斷時間 |
| ms | ≤78 |
額定操作順序 |
| ms | O-0.3S-CO-180s-CO |
動觸頭行程 |
| mm | 96±2.5 |
觸頭開距 |
| mm | 60±1.5 |
合閘緩沖行程 |
| mm | 10±2 |
相間分閘同期性 |
| ms | ≤3 |
相間合閘同期性 |
| ms | ≤3 |
相間距 |
| mm | 725 |
SF6年漏氣率 |
| % | ≤0.5 |
SF6氣體水份含量(ppm,20℃時表壓) | 交接驗收值 | V/V | ≤150 |
運行值 | V/V | ≤300 | |
SF6氣體額定壓力(20℃時表壓) | Mpa | 0.45 | |
SF6氣體補氣壓力(20℃時表壓) | Mpa | 0.42 | |
SF6氣體閉鎖壓力(20℃時表壓) | Mpa | 0.4 | |
機械壽命 |
| 次 Times | 6000 |
Sf6氣體重量 |
| kg | 5 |
重量 | 帶CT | kg | 800 |
不帶CT | kg | 1000 | |
1、請注明產品名稱、型號;
3、請注明操動機構及輔助(控制)回路額定工作電壓;
4、請注明電流互感器的數量、安裝方式(內置或外置)、變比、準確級次及額定容量;
5、請注明其它特殊要求,如高寒型、安裝支架及輔助接點數量等;
6、請注明訂貨數量及交貨時間。
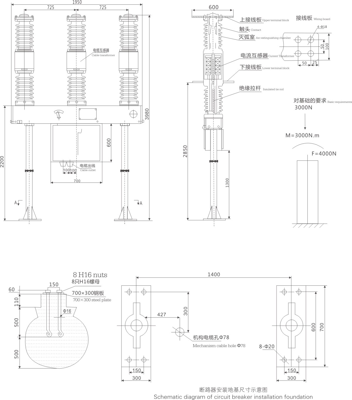
外形尺寸圖
Copyright ? 浙江西開電氣有限公司 備案號: 技術支持:鼎諾傳媒